Salon aranżacje
Re: Salon aranżacje
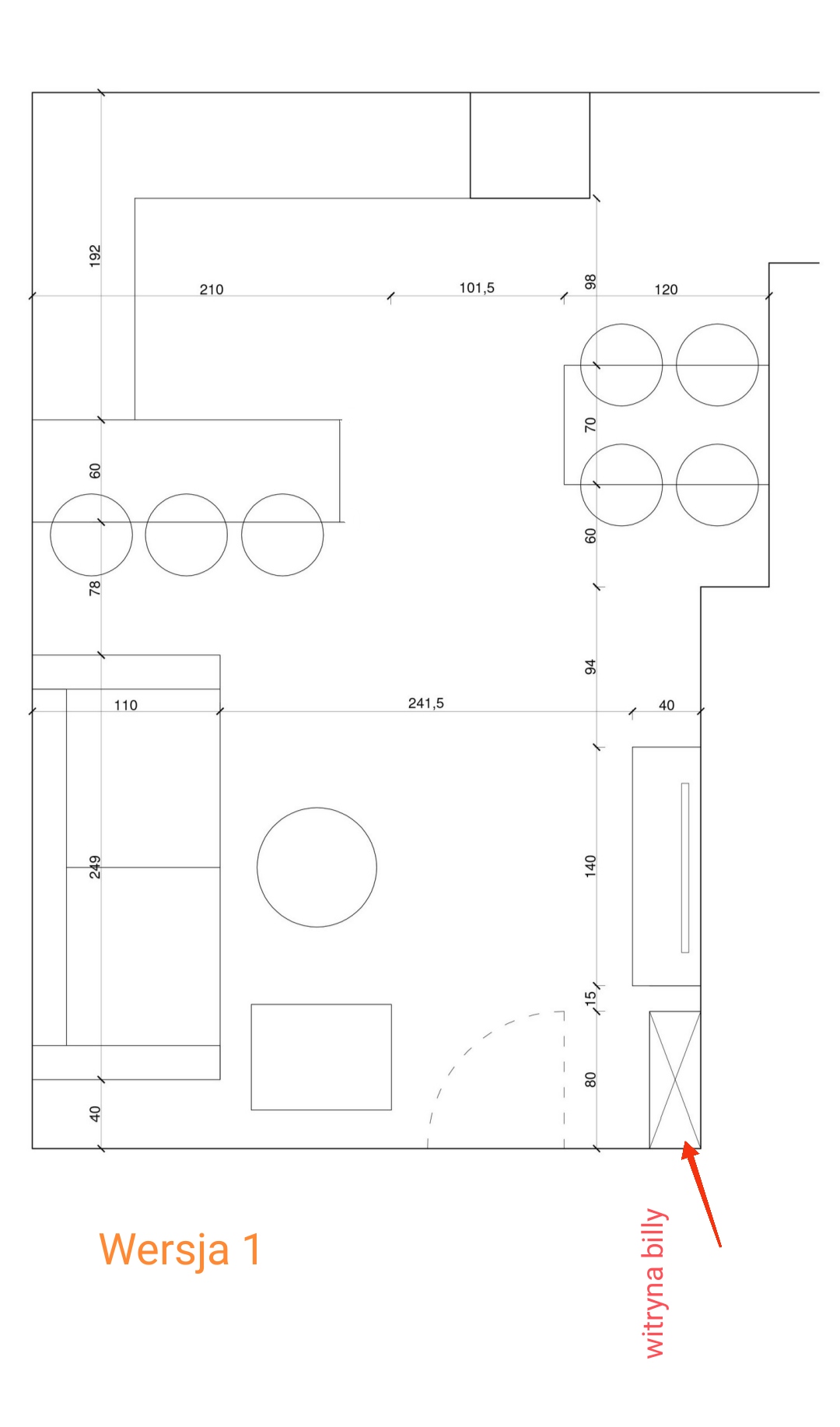
Posiedziałam nad projektem salonu.
Praktyczniejsza wydaje mi się wersja nr 1.
W wersji 1, blat mogę wysunąć max do 210 cm, żeby było przejście.
Praktyczniejsza wydaje mi się wersja nr 1.
W wersji 1, blat mogę wysunąć max do 210 cm, żeby było przejście.
"Działanie pociąga za sobą koszty i ryzyko,
ale o wiele mniejsze niż te,
które wiąże się z wygodną biernością."
Julia 2.4.2017r.
ale o wiele mniejsze niż te,
które wiąże się z wygodną biernością."
Julia 2.4.2017r.
Re: Salon aranżacje
Lisbeth myślę że obie wersje są ok. A okrągły stół nie może być tam gdzie prostokątny? Nie wiem ile metrów ma salon, ale okrągły zazwyczaj wizualnie zajmuje mniej miejsca.
Rok temu zamontowaliśmy klimatyzację i od tego czasu mój mąż skraca karnisz
Stwierdziłam, że chciałabym karnisz z maskownica. Czy myślicie że takie rozwiązanie ze ścianą z klimatyzacją byłaby zasłonięta zasłoną będzie ok? Czy może firana sama? Albo na tym kawałku ściany nic, ale to chyba byłoby brzydko.. 

Rok temu zamontowaliśmy klimatyzację i od tego czasu mój mąż skraca karnisz



Re: Salon aranżacje
A można w ogóle zasłaniać klimę? Nie będzie Ci zagrzybiac w tym miejscu?
Re: Salon aranżacje
Mixonia, wrzucam zdjęcie narożnika.
W sumie ten kąt jest już prawie wykończony, nad narożnikiem będzie jeszcze zegar złoty, przyklejany na ścianę
W sumie ten kąt jest już prawie wykończony, nad narożnikiem będzie jeszcze zegar złoty, przyklejany na ścianę
- Załączniki
-
- IMG_20231120_095405.jpg (1.63 MiB) Przejrzano 17225 razy

Re: Salon aranżacje
Nie ma jeszcze lamp, ale to jeszcze musi poczekać
na razie mamy oryginalne żarówki na kablach 

Re: Salon aranżacje
KarLa, my mamy w salonie tez jeszcze oryginalne zarowki i u M
dla niej lampe juz zamowilam w tym tygodniu bedzie
20.07.2015 - 10tc 
05.01.2018 - 8tc
18.08.2018 🩷
16.06.2021 🩵
05.01.2018 - 8tc
18.08.2018 🩷
16.06.2021 🩵
Re: Salon aranżacje
Bardzo fajny naroznik, ile ma wysokości? Wjedzie pod niego odkurzacz?
Zdradzisz jaki jest koszt takiego?
Mam serdecznie dosyć naszego że względu na to, że zbiera się pod nim mnóstwo rzeczy, wpadają lego, kredki i wszystko co możliwe i nie da się ich od razu wyciągnąć. I te poduszki latające po całym salonie...
Zdradzisz jaki jest koszt takiego?
Mam serdecznie dosyć naszego że względu na to, że zbiera się pod nim mnóstwo rzeczy, wpadają lego, kredki i wszystko co możliwe i nie da się ich od razu wyciągnąć. I te poduszki latające po całym salonie...
Re: Salon aranżacje
KarLa, fajny narożnik.
My w sobotę zamówiliśmy nowy, też idziemy w granat. Nasz się pozarywał i jest okropnie niewygodny. No i też denerwuje mnie sprzątanie pod nim, bo trzeba go rozłożyć na segmenty, żeby pod nim odkurzyć.
Wysłane z mojego Pixel 6 przy użyciu Tapatalka
My w sobotę zamówiliśmy nowy, też idziemy w granat. Nasz się pozarywał i jest okropnie niewygodny. No i też denerwuje mnie sprzątanie pod nim, bo trzeba go rozłożyć na segmenty, żeby pod nim odkurzyć.
Wysłane z mojego Pixel 6 przy użyciu Tapatalka


Re: Salon aranżacje
Nuutella, wrzucę linka, tam chyba są wszystkie informacje https://www.brattex.pl/naroznik-baltico ... l#wzorniki
Zapłaciliśmy 4170. Dostawa kosztowała 200zl w nasz region, doplacalismy do lepszej pianki.
Niestety odkurzaczem się nie wjedzie. Sama rura od odkurzacza tak, ale bez szczotki
Miśka, nasz jest czarny, może w tym świetle wpada w granat.
Ja marzę żeby ten się trochę usiedział, bo zamówiliśmy lepsza piankę i dla mnie jest trochę twardy
Zapłaciliśmy 4170. Dostawa kosztowała 200zl w nasz region, doplacalismy do lepszej pianki.
Niestety odkurzaczem się nie wjedzie. Sama rura od odkurzacza tak, ale bez szczotki
Miśka, nasz jest czarny, może w tym świetle wpada w granat.
Ja marzę żeby ten się trochę usiedział, bo zamówiliśmy lepsza piankę i dla mnie jest trochę twardy

Re: Salon aranżacje
Dzięki. Szukam takiego żeby wjechał mi roborock.
Rzeczywiście myślałam że to granat
Rzeczywiście myślałam że to granat
Re: Salon aranżacje
Piękny! No i to okno, jeszcze w dodatku sceneria zimowa za nim 
Już nie mogę się doczekać Waszej choinki! Będzie duża i żywa?
Już nie mogę się doczekać Waszej choinki! Będzie duża i żywa?
24.06.2005 
25.07.2009

25.07.2009

Salon aranżacje
Nuutella, pod nasz wjeżdża robot ale nie ma regulowanych zagłówków. Z samego narożnika jesteśmy bardzo zadowoleni. Najbardziej sobie cenię plamoodborny materiał 
Karla, bardzo fajny!

Karla, bardzo fajny!
Re: Salon aranżacje
Jeju mnie tez tak wkurza ta zbieranina pod naroznikiem
ale jak kupowalismy ten, to nie znalazlam nic co byloby wyzsze plus rozkladane a bralabym odrazu... Ale z poduch tez zrezygnowalam bo do szalu mnie doprowadzaly
20.07.2015 - 10tc 
05.01.2018 - 8tc
18.08.2018 🩷
16.06.2021 🩵
05.01.2018 - 8tc
18.08.2018 🩷
16.06.2021 🩵
Kto jest online
Użytkownicy przeglądający to forum: Obecnie na forum nie ma żadnego zarejestrowanego użytkownika i 9 gości


