nasze 4 kąty
Re: nasze 4 kąty
Pytanko.
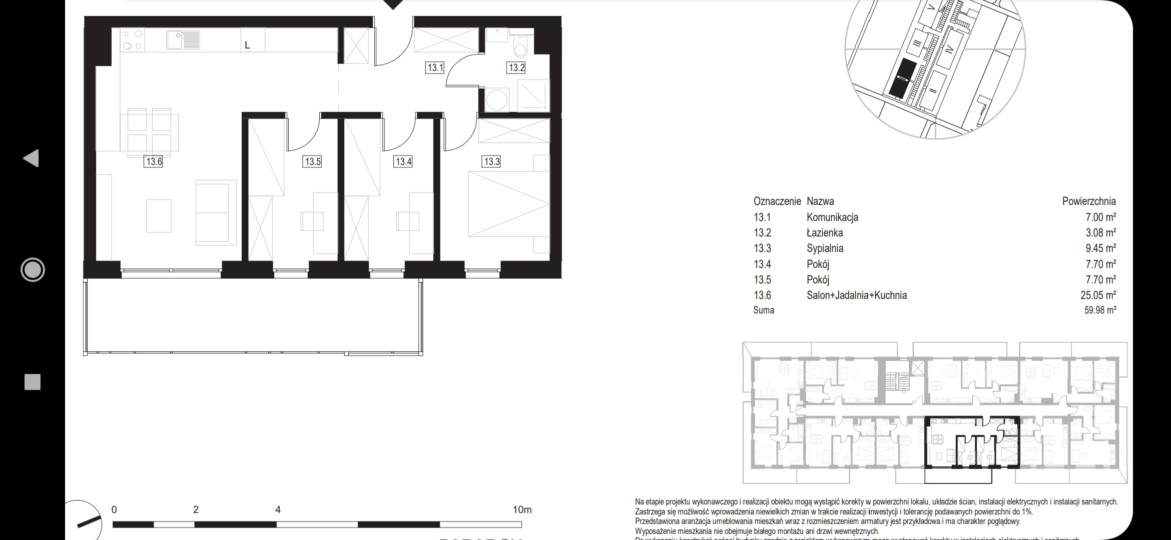
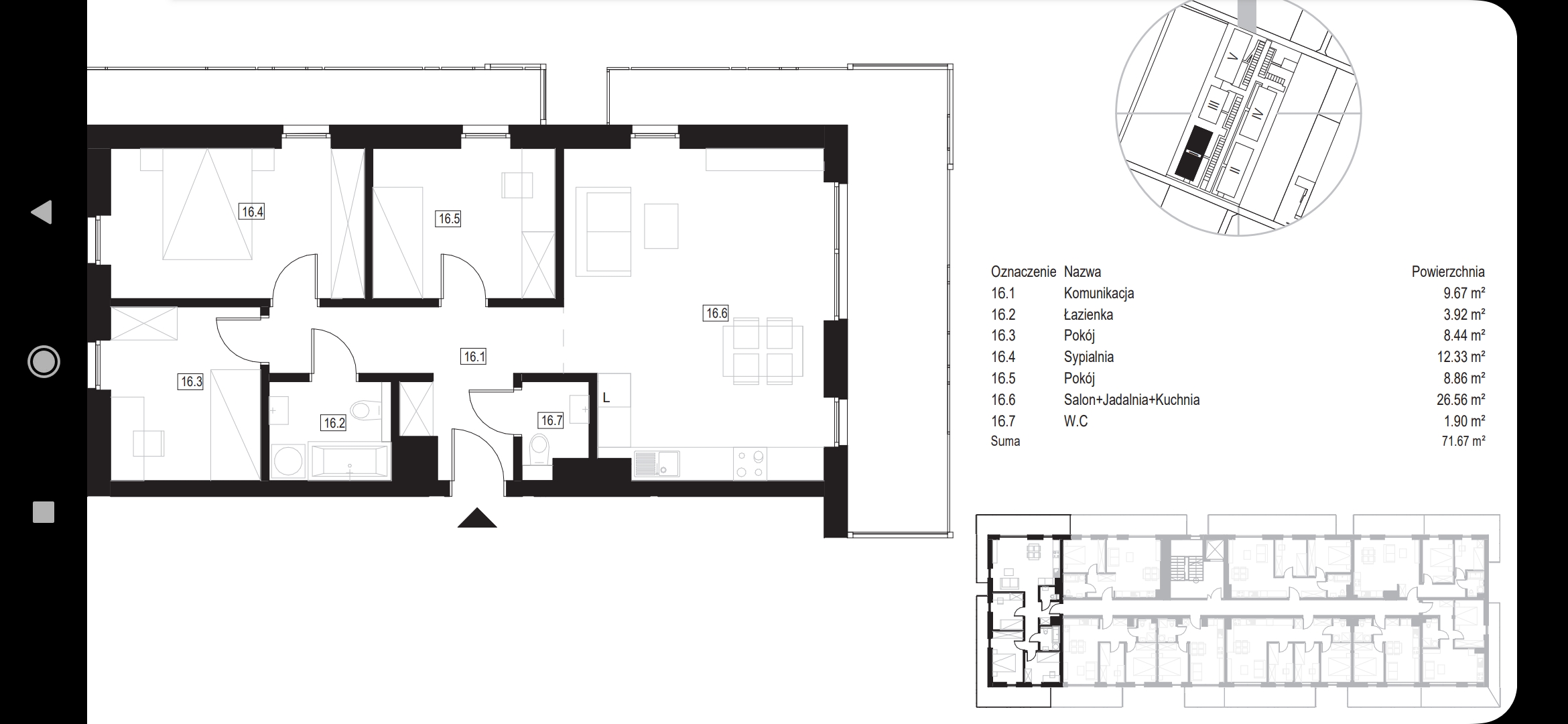
Różnica w cenie 96 tys zł.
Dwa mieszkania 4 pokojowe, pierwsze 60 m2, drugie prawie 72 m2.
Czy warto brać większy kredyt czy lepiej symboliczny?
Co myślicie o tych układach?
1. 71,67 m2 2. 59,98 m2
Różnica w cenie 96 tys zł.
Dwa mieszkania 4 pokojowe, pierwsze 60 m2, drugie prawie 72 m2.
Czy warto brać większy kredyt czy lepiej symboliczny?
Co myślicie o tych układach?
1. 71,67 m2 2. 59,98 m2
"Działanie pociąga za sobą koszty i ryzyko,
ale o wiele mniejsze niż te,
które wiąże się z wygodną biernością."
Julia 2.4.2017r.
ale o wiele mniejsze niż te,
które wiąże się z wygodną biernością."
Julia 2.4.2017r.
Re: nasze 4 kąty
DziękiNessa pisze:Meg pięknie! Prysznic mega
Wysłane z mojego Redmi Note 7 przy użyciu Tapatalka
Re: nasze 4 kąty
Tak, poproszę! Muszę przemalować jeden pokój i właśnie chciałam jakieś połączenie brudnej mięty i bieli.
Pokaż więcej!
Re: nasze 4 kąty
Lisbeth87 ja bym wybrała mniejszy kredyt
tym bardziej, że dla mnie układ drugiego mieszkania super. Plus za to, że do każdego pokoju jest oddzielne wejście, jest przedpokój w którym zmieści się nawet szafa
Moje mieszkanie ma 63m 2 a układ beznadziejny. Z tego który pokazałaś byłabym bardzo zadowolona 
N 2018
M 2023
M 2023
Re: nasze 4 kąty
Lisabeth wybrlaabym większe mieszkanie, WC przerobiła na garderobę. Jedynie nie podoba mi się kuchnia całkowicie otwarta na salon, jeśli nie mozn tam dostawić żadnej wyspy.
Polozenie wydaje się fajne, o ile blok jest dobrze docieplony.
Drugie do mnie nie przemawia, pokoik 7m2 to bardzo mało, dla mnie to upychnaie pomieszczeń na siłę.
Polozenie wydaje się fajne, o ile blok jest dobrze docieplony.
Drugie do mnie nie przemawia, pokoik 7m2 to bardzo mało, dla mnie to upychnaie pomieszczeń na siłę.
Re: nasze 4 kąty
Ja bym była za większym, ale nie wiem czemu naprzeciwko kanapy jest okno. A gdzie powiesić telewizor? 
Pokoiki dość małe w tej mniejszej wersji.
Wysłane z mojego Redmi Note 7 przy użyciu Tapatalka

Pokoiki dość małe w tej mniejszej wersji.
Wysłane z mojego Redmi Note 7 przy użyciu Tapatalka
Re: nasze 4 kąty
Nutella, męża zapytam bo on ma gdzieś to zapisane
Dam Ci znać
Wysłane z mojego Redmi Note 7 przy użyciu Tapatalka
Dam Ci znać Wysłane z mojego Redmi Note 7 przy użyciu Tapatalka
Re: nasze 4 kąty
meg cudna łazienka!
lisbeth87 rozum podpowiada mniejszy kredyt w obecnych czasach, ale mi osobiście układ 2 mieszkania nie podoba się. I nie wyobrażam sobie pokoi 7m2.
lisbeth87 rozum podpowiada mniejszy kredyt w obecnych czasach, ale mi osobiście układ 2 mieszkania nie podoba się. I nie wyobrażam sobie pokoi 7m2.
- Escherichia
- Posty: 5672
- Rejestracja: 27 maja 2017, 11:23
Re: nasze 4 kąty
Lisbeth, brałabym większy kredyt na większe mieszkanie. Plan pierwszego mieszkania bardziej mi się podoba i wielkości pokoi są se sensowne. Pozbyłabym się toalety na rzecz szafy.
Re: nasze 4 kąty
Lisbeth, też bym brała większe mieszkanie, myślę, że jeśli weźmiecie mniejsze, to za jakoś czas będziesz żałować decyzji. Jest fajne, ma super układ, dwa tarasy, miejsce na garderobę albo pralnio-suszarnie, dużo możliwości w salonie/kuchni no i przede wszystkim przestrzeń
chciałabym takie mieszkanie
Re: nasze 4 kąty
Napiszesz jaka jest cena większego?
Re: nasze 4 kąty
Lisbeth, zdecydowanie większe mieszkanie.
My mamy podobny metraż do tego większego, 4 pokoje, toaleta osobna i szczerze nie uważam mieszkania za jakoś bardzo duże. Tak akurat przy dwójce dzieci. No i tarasy, to ogromny plus.
My mamy podobny metraż do tego większego, 4 pokoje, toaleta osobna i szczerze nie uważam mieszkania za jakoś bardzo duże. Tak akurat przy dwójce dzieci. No i tarasy, to ogromny plus.
Re: nasze 4 kąty
Meg pięknie
Lisabeth oczywiście że większe
Lisabeth oczywiście że większe
Dom do wynajęcia
https://www.nocowanie.pl/rezerwuj/15581 ... leszowice/
2010-19.09-2015 *** N 23.07.2018 *** M 5.05.2020


https://www.nocowanie.pl/rezerwuj/15581 ... leszowice/
2010-19.09-2015 *** N 23.07.2018 *** M 5.05.2020


Kto jest online
Użytkownicy przeglądający to forum: Obecnie na forum nie ma żadnego zarejestrowanego użytkownika i 14 gości







